ROCKHOUNDS OPAL SPECIALIST
Share
This retail store was produced in 2019. This design is simple and bright, white and light gray colors with mirror stainless steel decorative strips, make the whole store looks clean and high-end.
Paul visited our booth at the Hong Kong Jewelry Fair and was very surprised by the quality and lighting of our products. But he didn’t trust us very much as he was worried that the products we deliver to our customers are not as good quality as the show displayed also thought the lamps are easily damaged. So he just bought a led light at our exhibition site. Half a month later, we received the floor plan of his shop in the email. His wife Denies told us that Paul really liked our lights and said it was exquisite, so he wanted to try to cooperate with us.
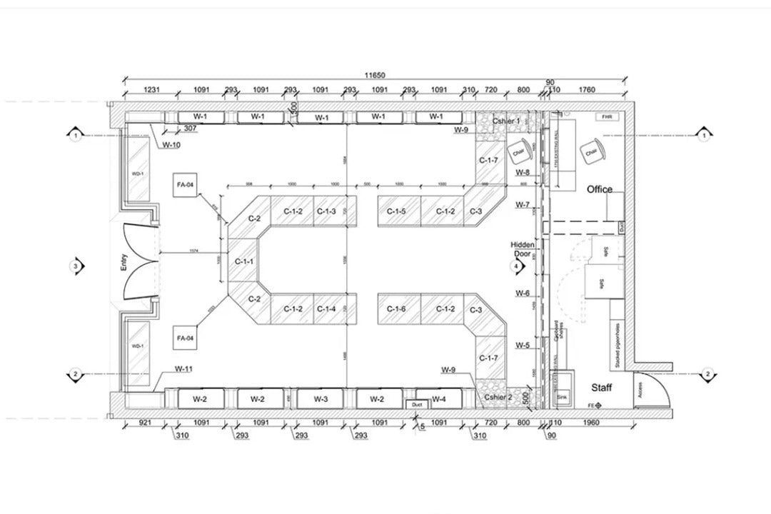
Proposed Design | Floor Plan and 3D Rendering
After we received his floor plan, we learned in detail about the store, the types of their products, and the flow of customers, and asked him to verify the internal dimensions of the store. A week later, we submitted our proposed store interior design, which is simple and clear with competitive budget. We got approved floor plan from Paul after just one time changes.




Final Store
Two and a half months later, the customer received our product and said that our packaging was very good, everything was perfect, and there was no damage. During the assembly process, Paul’s wife Denise sent feedback and said: Our electrician said your showcase are the best he had seen coming from China. After finishing the assembly, she was very satisfied with our work, and the, she sent us the following photos and wrote a letter of recommendation.




Their Review
Denise & Paul Hain/Rockhounds Opal Specialist: Dear Merry and BESTY Display, We want to express our sincere gratitude for your wonderful products which are better than our expectation in every way. We are truly impressed of your professionalism and efficiency throughout the whole process from design, production to after sale service. We feel really lucky that we decided to work with you and we now got a beautiful shop. We can recommend you to our best friends with confidence. Merry and everyone at BESTY Display who involved in making or products, you have done a great job!